Rummelig bolig med stor altan ud til Kolding Å

Denne lyse og moderne bolig er beliggende på 1. sal i Kolding City, med en fantastisk altan og smuk udsigt over Kolding Å.

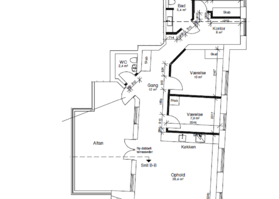
Boligen består af et åbent køkken-alrum og stue med direkte adgang til en stor altan, tre værelser, et badeværelse og et gæstebadeværelse.
Boligen er udstyret med HTH køkken, køle- og fryseskab, pyrolyseovn, induktionskogeplade, opvaskemaskine, vaskemaskine og tørretumbler.

Husdyr kan godkendes efter aftale.

Der er mulighed for leje af fast parkeringsplads i parkeringskælder kun 100 meter fra lejligheden.

Boligstøtte
Du kan beregne, om du er berettiget til boligstøtte, på følgende hjemmeside:
Søg boligstøtte på dette link

Jeg er interesseret i Søndergade 10C, 1. 6000 Kolding – BOLIG MED STOR ALTAN UD OVER KOLDING Å

=