GRATIS HUSLEJE I NOVEMBER 2025

BOLIG MED STOR TERRASSE – KLAR TIL INDFLYTNING
LÅN TIL DEPOSITUM

Beliggende med busstoppested lige foran ejendommen og dagligvarebutikken NETTO som nærmeste nabo.

Materialebeskrivelsen
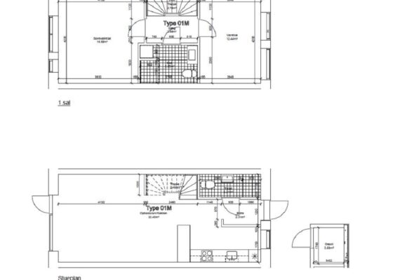
2-plan bolig med mulighed for installation af trappelift mellem stueplan og 1. sal.
Boligerne er installeret med gulvvarme, ventilation, vaskemaskine, tørretumbler, kølefryseskab, pyrolyseovn, induktionskogeplade og opvaskemaskine.

Forbrug
Huslejen er eksklusiv forbrug – lejer afregner forbrug (el, vand og varme) direkte med forsyningsselskaberne.

Husdyr
Husdyr kan godkendes, men må ikke være til gene for andre beboere.

Parkering
Boligen inkluderer en parkeringsplads uden overdækning.

Skur
Alle boliger inkluderer et skur på ca. 3,5 m².

Gæstelejlighed
Det er muligt at låne gæstelejlighed på LykkesHave til overnattende gæster.

Clever
Der er etableret 11 kw ladestandere på matriklen.

Boligstøtte
https://www.borger.dk/Handlingsside?selfserviceId=a153fd97-6252-4058-ac3f-5a59079cbded

På ovenstående hjemmeside kan du beregne, om du er berettiget til boligstøtte.

Se mere på link herunder for lån til depositum:

Lån til depositum

Jeg er interesseret i Holbergshave 15, 6000 Kolding

=